Nietuzinkowy dom pasywny, 5 pokoi, garaż, 220 m2,
Jonkowo Pokaż na mapie ›
Dodane: Poniedziałek, 09 Marzec, 2026 22:24
1 249 000 zł
5478 zł/m2
Szczegóły ogłoszenia
- Kategoria: Domy / Sprzedaż
- Powierzchnia:228 m2
- Liczba pokoi:5 i więcej pokoi
- Pow. działki:1530 m2
- Rynek:Pierwotny
- Rok budowy:2026
- Sprzedaż:Pośrednik
- Cena: 1 249 000 zł / 5478 zł/m2
Opis oferty
Nowoczesne domy pasywne w technologii drewnianej, z 5 pokojami,garażem w bryle budynku. Bardzo funkcjonalny rozkład pomieszczeń
zapewnia miejsce na odpoczynek, wspólną zabawę i pracę.
Technologia, która łączy w sobie energooszczędność, troskę o
środowisko i komfort. Wykorzystanie naturalnego materiału - drewna
sprowadzonego ze Szwecji oraz Austrii zapewnia zdrowy mikroklimat, a
zastosowanie pompy ciepła i rekuperacji pozwala na znaczące
obniżenie kosztów eksploatacji.
LOKALIZACJA:
Inwestycja znajduje się w Jonkowie, 13 km od Olsztyna, dojazd do
centrum Olsztyna zajmuje zaledwie 20 minut.
Nowo powstające osiedle domków jednorodzinnych, z potencjałem do
stworzenia miejsca idealnego do życia dla par i rodzin z dziećmi.
Jonkowo - prężnie rozwijająca się gmina z bogatym zapleczem
handlowo-usługowym (Market Dino, Biedronka, Delikatesy Centrum,
lokalne osiedlowe sklepy spożywcze),
- zaplecze gastronomiczne - bary, kawiarnie, restauracje,
- placówki oświatowe - szkoła podstawowa, przedszkole,
- placówki medyczne - przychodnie, przychodnia weterynaryjna,
- tereny rekreacyjne - stadion gminny, plac zabaw.
Cała niezbędna infrastruktura dostępna na wyciągnięcie ręki.
Miejscowość obfitująca w tereny zielone i lasy.
DZIAŁKA:
Działka o powierzchni 1530 m2 w kształcie prostokąta, dobrze
nasłoneczniona,.
Na działce będzie zasiana trawa, kostka brukowa na podjeździe,
brama i ogrodzenie.
MEDIA:
- prąd,
- woda i kanalizacja sieciowa gminna,
- zasięg Internetu LTE.
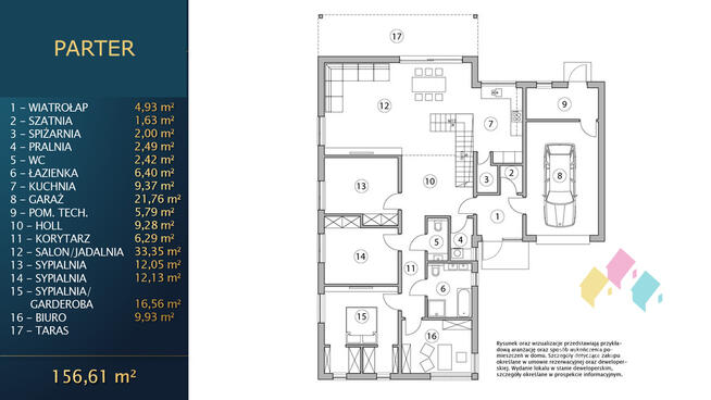
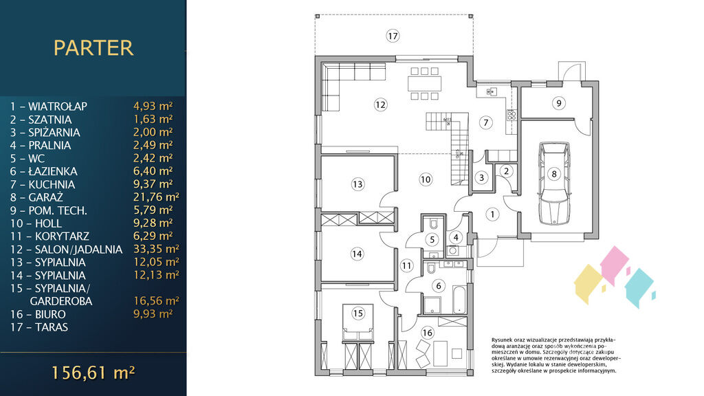
BUDYNEK:
Wolnostojący dom, z użytkowym poddaszem o powierzchni użytkowej
228,63 m2 (parter 156,61 m2, poddasze 72,02 m2)
TECHNOLOGIA:
Budynek został zaprojektowany w systemie szkieletowym -
skandynawskim. Na całą konstrukcję bez wyjątku zostało użyte
certyfikowane drewno C24 oraz drewno klejone BSH, sprowadzane ze
Szwecji oraz Austrii. Budowane zgodnie ze sztuką skandynawskich
konstruktorów i wykonawców.
Konstrukcja budynku posadowiona jest na tzw. ciepłej płycie
fundamentowej, która zbudowana (oszalowana) została używając
specjalnych form szalunkowych wykorzystywanych głównie w
Skandynawii. Posadzki oraz ławy betonowe oddzielone są od gruntu
styropianem EPS100 Neo Therm o grubości 10 cm w ławach oraz 30 cm w
posadzkach. Płyta jest również wypełniona instalacjami,
poczynając od kanalizacji, po zasilanie wodne oraz ogrzewanie
podłogowe, czy też zasilanie energetyczne.
Wszystkie okna wraz z drzwiami balkonowymi HST, z systemu Salamander
BluEvolution 92 oraz Evolution Drive 92 o bardzo dobrym
współczynniku termicznym. Do okien został także zastosowany tzw.
ciepły montaż. Brama garażowa wraz z drzwiami w kotłowni są
Wiśniowskiego, drzwi wejściowe Erkado z doświetleniem po prawej
stronie. Brama oraz drzwi wejściowe antracytowe.
Pokrycie dachowe wykonane z desek na pióro-wpust sprowadzane
również ze Szwecji i tam też tylko stosowane. System dachówki
Koramic - membrana dachowa oraz dachówki Koramic V9. Dachówka jest w
tym przypadku nadzwyczajna z tego względu, ponieważ została
zaprojektowana przez markę Porsche przy współpracy z Koramicem,
producentem dachówek. System rynnowy Niagara Pruszynski.
Ocieplenie ścian nośnych celulozą. Łączna grubość przegrody
termoizolacyjnej w ścianach to 31cm (Steico Protect od zewnątrz 6cm
+ 20cm celuloza Ekovilla w ścianach nośnych + 5cm od wewnątrz w
ruszcie instalacyjnym). Ściany od wewnątrz obite i obklejone
szczelnie paroizolacją TRIOFOL. Dach ocieplony wełną natryskową.
Wykończenie wewnętrzne, po zakończeniu prac z instalacjami jest
bardzo proste. Obijamy wszystkie ściany płytą OSB 12mm a następnie
płytą G-K 12mm. Szpachlowanie oraz malowanie na biało produktami
Fluggera.
Strop będzie odizolowany płytami wygłuszającymi. Na stropie płyta
podłogowa na wczep, również sprowadzana ze Szwecji.
Instalacje elektrycznie oraz wodno-kanalizacyjne przygotowane w
łazienkach oraz w kuchni.
INSTALACJE:
- zasilania i instalacje wodne w systemie rurowym PEX
- pompa ciepła powietrze-powietrze Hitachi
- rekuperacja
STAN PRAWNY/OPŁATY/DOSTĘPNOŚĆ:
Pełna własność.
Energooszczędny budynek o niskich kosztach eksploatacji.
Planowany termin zakończenia robót budowlanych: 31.03.2027 r.
POŚREDNIK:
Aleksandra Kicka
tel. 512 - pokaż numer telefonu -
@
Licencja pośrednika nr 31500.
Przedstawiona oferta cenowa ma charakter informacyjny, nie stanowi
oferty handlowej w rozumieniu art. 66 § 1 Kodeksu Cywilnego.
Właścicielem ogłoszenia wraz z jej elementami jest NewHouse Łukasz
Wróbel oraz podmioty współpracujące.
Wszelkie prawa są zastrzeżone, kopiowanie, rozpowszechnianie oraz
korzystanie z niniejszych składowych materiałów ogłoszenia w
jakikolwiek inny sposób wykraczający poza dozwolony użytek
określony przepisami ustawy z 4 lutego 1994 r. o prawie autorskim i
prawach pokrewnych (Dz. U. 1994, nr 24 poz. 83 z późn. zm.) bez
zgody NewHouse Łukasz Wróbel lub podmiotów współpracujących jest
zabronione i może stanowić podstawę odpowiedzialności cywilnej
oraz karnej.
Niniejsze materiały stanowią tajemnicę firmy NewHouse Łukasz
Wróbel lub podmiotów współpracujących w rozumieniu ustawy z dnia
16 kwietnia 1993 r. o zwalczaniu nieuczciwej konkurencji (Dz. U. z
2003 r., Nr 153, poz. 1503 z późn. zm.).
Niniejsze ogłoszenie nie stanowi oferty w rozumieniu Kodeksu
Cywilnego, lecz ma charakter informacyjny.
Sprawdź zainteresowanie tym ogłoszeniem
Wyświetlenia
Data dodania
Ostatnio widziany
Obserwujących
Wysłane zapytania
Odsłony telefonu
Powiadom o podobnych ogłoszeniach
Lokalizacja: Jonkowo
Kategoria: Nieruchomości » Domy » Sprzedaż
Cena: od 1061500 zł do 1436500 zł Powierzchnia : od 194 m2 do 262 m2
Chcę otrzymywać powiadomienia o nowych ofertach

New House
Konto firmowe
Na Lento.pl od 04 gru 2019
Strona użytkownika
- Wypromuj ogłoszenie
- Zgłoś naruszenie
- Drukuj ulotkę
- Edytuj/usuń ogłoszenie
- Udostępnij ogłoszenie
- Dodaj na Facebook































